Get a free valuation

Get an instant valuation here or contact one of our offices

Photos Slideshow
Area Map Street View Schools Floorplan

4 Bedroom House - Semi-Detached  For Sale in Thornwood £975,000

4 Bedrooms | 3 Bathrooms | 2 Receptions

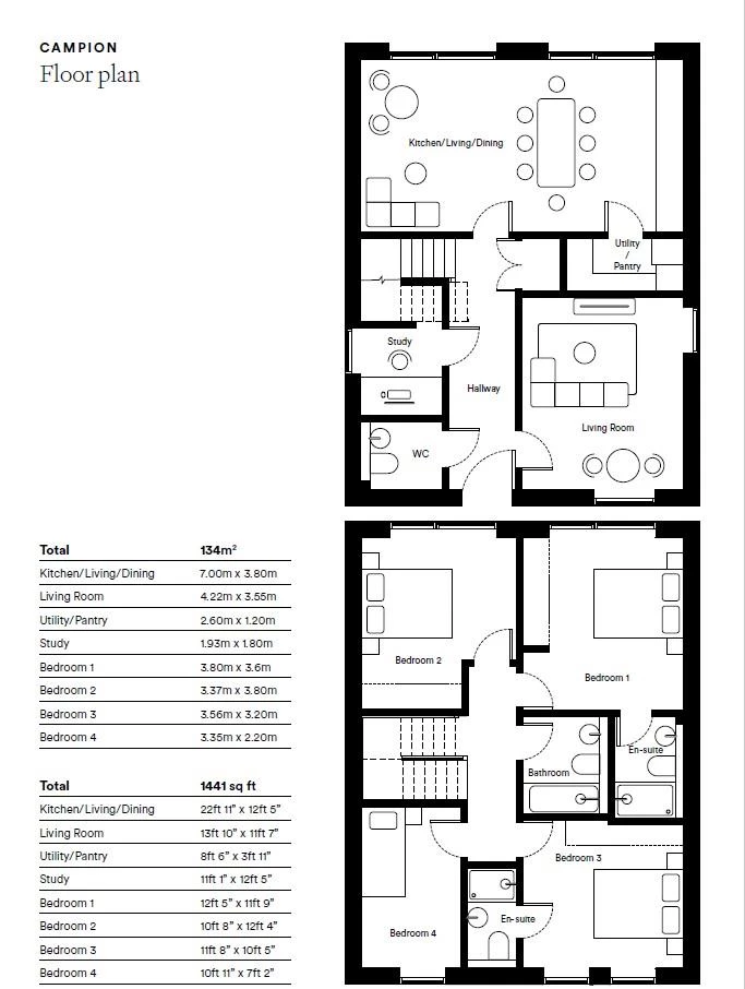
A comfortable study and large living room greet you at the front, while the wide kitchen, dining and living space stretches out to the rear, opening onto the garden through double patio doors. Upstairs brings three double bedrooms (two en-suite), a bright single, and a family bathroom. This home is completed by a ground floor WC, utility room/ pantry, indoor and outdoor storage, entry porch, and a carport with EV charging.

The Neighbourhood:
Designed & delivered by RIBA award-winning developers gs8 and architects Boehm Lynas. Gs8 are delighted to be the UK s largest development to offer no home energy bills for five years, in partnership with Octopus Energy. Zero Bills is the world's first smart tariff powered by Octopus Energy, helping you live in comfort with no energy bills for your home, guaranteed for at least five years.

Conceived with community at its core and through engaging with local residents, every element has been considered to create a thriving neighbourhood, with an on-site fitness studio, local café and grocery store, a Reuse and DIY Centre, and outdoor spaces including forest play areas, walking trails, and a large pond, Carpenters Yard has been thoughtfully designed to bring nature and community together.

This beautifully designed planet-positive neighbourhood redefines regenerative living.

The Homes:
At Carpenters Yard we have a collection of two, three and four-bedroom homes, the development has a wide variety of homes available to suit your family needs. There will be terraced, end of terrace, semi-detached and detached homes within the community. Each home is set over two floors with incredible lateral living in mind.

There are also just four duplex 2 & 3 bedroom apartments available located within Lakeshore Lodge, which is situated next to the picturesque pond.

Each home has a landscaped garden, a dedicated EV charging point & PV panels.

This Home:
Crafted to offer everything your family needs, The Hawthorn is a 3-bedroom semi-detached home measuring close to 1300sqft. Stepping through the door, you view the garden through the house as you pass an impressive separate living room, following the hallway into a modern kitchen-and-dining space with patio doors leading out onto your garden bringing the outdoors in. Heading upstairs, there is an exemplary principal suite with plenty of space including an en-suite bathroom. There are two further double bedrooms and a family bathroom. Additional highlights include a landscaped garden with side access, ground floor cloakroom, utility room/pantry, outdoor storage, and a car port with parking for two cars inclusive with EV charging point.

The specification has been thoughtfully curated with design and comfort in mind, our team of architects, interior designers and build team have woven together each detail meticulously:
Handcrafted bespoke British kitchens complete with Compac worktops and Samsung appliances included throughout.
Elegant bathrooms with Italian-manufactured tiles and Scudo brassware
All homes have Samsung air source heat pumps and MVHR systems
Triple glazed composite timber & aluminium windows and doors
Oak flooring with a lifetime warranty & 100% wool carpets
High ceilings throughout all homes

The Area:
Enjoy a new lease of life surrounded by the breathtaking Epping Forest, two miles (6-minute drive) from the historic charm, independent shops and local spirit of Epping. Carpenters Yard is conveniently situated with excellent underground (Central Line), overground and motorway links (M11 and M25) all within a four-mile radius. There are excellent primary, secondary and independent schools locally.

Disclaimer:
*External images represent an end-of-terrace Damson home and should be used for guidance only
*Zero Bills is powered by Octopus Energy via Eclipse Power Optimise Thornwood Limited *Limits, Terms & Conditions and exclusions apply. See optimisemicrogrid.co.uk
*Photos are computer-generated images and should be used for guidance only.

Floor Plan 1

Stamp Duty Land Tax

See full breakdown

Total SDLT due

Below is a breakdown of how the total amount of SDLT was calculated

Up to £0k (Percentage rate 0 %)

Above £0k and up to £0k (Percentage rate 0 %)

Above £0k and up to £0k (Percentage rate 0 %)

Above £0k and up to £0k (Percentage rate 0 %)

Above £0k and up to £0m (Percentage rate 0 %)

Above £om (Percentage rate 0 %)

Please note: This is for illustrative purposes only. The above calculator should not be relied upon when making financial decisions. Please seek advice from a specialist financial provider.

Mortgage Details

Results

IMPORTANT NOTICE

Descriptions of the property are subjective and are used in good faith as an opinion and NOT as a statement of fact. Please make further specific enquires to ensure that our descriptions are likely to match any expectations you may have of the property. We have not tested any services, systems or appliances at this property. We strongly recommend that all the information we provide be verified by you on inspection, and by your Surveyor and Conveyancer.

Customer reviews

The service provided by the entire team at Butler and Stag is fantastic. From purchasing a plot, to the sale of the properties was run fantastically. Very professional outfit and a pleasure to work with. We certainly will be using Butler and Stag again in the near future. Matthew Hammond

Read more reviews
Our office Google reviews

Our office Google reviews

★★★★★ 4.9 Bow (London Office)

★★★★★ 5.0 Theydon Bois (West Essex Office)

★★★★★ 5.0 Buckhurst Hill Office

★★★★★ 5.0 Land & New Homes Office

Find your next property